羽毛球场运动地板尺寸标准建设

发布时间:2024-09-16

Image

羽毛球场的尺寸和建设标准看似简单,实则蕴含着深刻的科学考量。这些标准不仅确保了比赛的公平性,还直接影响着运动员的表现和观赏体验。

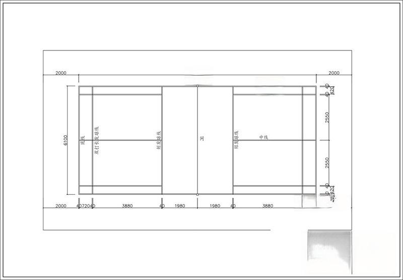
首先, 羽毛球场的标准尺寸为长13.40米,双打宽6.10米,单打宽5.18米。 这样的设计并非随意而为,而是基于羽毛球的飞行特性和运动员的移动能力。较长的场地长度为运动员提供了足够的纵深空间,而双打场地较宽的设计则增加了比赛的复杂性和策略性。值得注意的是, 场地的对角线长度也有明确规定,双打为14.723米,单打为14.366米。 这些精确的尺寸确保了比赛的公平性和可预测性。

其次,羽毛球场的地面材料选择至关重要。 国际比赛通常采用化学合成材料作为可移动的塑胶球场。 这种材料不仅能提供适当的弹性,还能有效减少运动员受伤的风险。研究表明,适当的地面弹性可以降低运动员下肢关节的冲击力,减少运动损伤的发生。同时,地面的摩擦系数也是一个关键因素。过于光滑的地面可能导致运动员滑倒,而过于粗糙的地面则会增加能量消耗,影响运动员的移动速度和敏捷性。

照明是另一个不容忽视的因素。根据标准, 羽毛球场的照明要求达到500~750勒克斯。 这样的照度既能保证运动员清晰地看到羽毛球的飞行轨迹,又不会造成刺眼的眩光。此外,球场的墙壁和天花板应为深色,以减少反光和干扰。这些细节的考虑都是为了最大限度地提高运动员的视觉舒适度和比赛的观赏性。

值得注意的是,羽毛球场的建设标准还考虑到比赛环境的影响。例如, 规定球场上空9米内不得有任何障碍物,四周2米内不得有任何干扰。 这些要求旨在减少外部因素对比赛的干扰,确保比赛的公平性和安全性。

总的来说,羽毛球场的建设标准是多方面因素综合考量的结果。从场地尺寸到地面材料,从照明要求到环境控制,每一个细节都经过精心设计,旨在为运动员创造最佳的比赛条件,同时也为观众提供优质的观赛体验。这些标准的严格执行,不仅保障了比赛的公平性,也推动了羽毛球运动的健康发展。