设盲沟、降水位、省造价

发布时间:2024-09-16

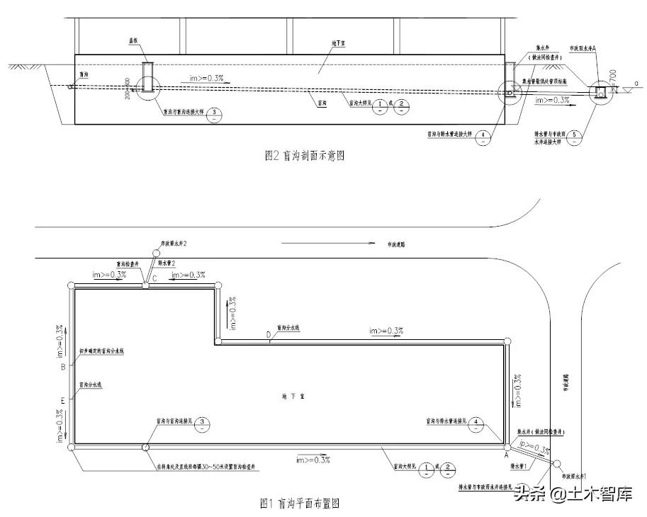
Image

在工程建设中,地下水位过高常常成为困扰施工的一大难题。传统的降水方法如井点降水虽然有效,但往往耗资巨大。近年来,一种名为“盲沟降水”的新技术正在逐渐受到关注。它不仅能够有效降低地下水位,还能大幅节省工程造价,为工程建设带来了新的可能性。

盲沟降水技术的核心原理是通过在建筑物周围设置一系列地下排水沟,将地下水引导至市政雨水系统。这种方法特别适用于地基为弱透水性土层、地下水量不大或排水面积较小的工程。根据《地下工程防水技术规范》的规定,盲沟排水宜用于“地下水位在建筑底板以下或在丰水期地下水位高于建筑底板的地下工程”。

盲沟的设计需要考虑多个因素。首先,盲沟的位置应沿地下室周边布置一圈,集水管坡度不宜小于0.3%。其次,应在转角处及直线段每隔30 50米设置检查井,井底距集水管底应留设200 300mm的沉淀部分。此外,盲沟集水管内径应不小于φ300,宜采用无砂混凝土管。

与传统的井点降水相比,盲沟降水具有显著的优势。它不需要复杂的机械设备,施工简便,维护成本低。更重要的是,它能够显著降低工程造价。根据某工程案例,采用盲沟降水技术后,工程造价比传统井点降水节省了约30%。这主要是因为盲沟降水减少了对大型降水设备的需求,同时简化了施工流程。

然而,盲沟降水技术也并非完美无缺。它存在设计方法不成熟、实际使用年限可能达不到50年、后期维护费用较高等问题。因此,在选择使用盲沟降水时,需要综合考虑工程的具体情况,权衡利弊。

尽管如此,盲沟降水技术在特定条件下仍具有广阔的应用前景。特别是在一些地下水位不高、土层渗透性较差的工程中,盲沟降水可以成为一种经济有效的选择。未来,随着技术的不断进步和经验的积累,盲沟降水有望在更多类型的工程中发挥作用。

需要注意的是,无论采用何种降水方法,都必须严格遵守相关规范,确保施工质量和安全。同时,应加强对地下水位的监测,及时调整降水方案,以应对可能出现的异常情况。

总的来说,盲沟降水技术为工程建设提供了一种新的选择。它不仅能够有效降低地下水位,还能大幅节省工程造价,为工程建设带来了新的可能性。在未来的工程建设中,合理运用盲沟降水技术,将有助于实现经济效益和工程安全的双赢。